Budapest - Eladó Lakás
I. kerület, Víziváros, Iskola utca
73 m2
156.900.000 Ft
347795
Felújított ingatlan gyönyörű kilátással!
Leírás
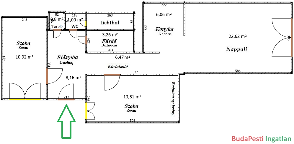
Eladásra kínálunk egy 73 m²-es, felújított, 3 szobás lakást, amely egy emeleti, liftes társasházban található. Az ingatlan világos és csendes, lenyűgöző kilátást kínál a Halászbástyára és a Mátyás-templomra a tágas nappaliból. Ideális választás mind saját otthonnak, mind befektetésnek. A felújítás során korszerű és esztétikus megoldások kerültek kialakításra, így az új tulajdonos azonnal költözhet.
Főbb jellemzők:
• 73 m² alapterület
• 3 külön nyíló szoba
• Felújított állapot
• Világos, csendes lakás
• Lenyűgöző kilátás
• Emeleti elhelyezkedés
• Liftes ház
Társasház jellemzői:
• 3 emeletes, 2 bejáratú épület
• Az Iskola utca felőli tetőszerkezet felújítva
• A társasház teljes villamos hálózata korszerűsítve
Kiváló elhelyezkedés, mindössze néhány lépésre a Batthyány tértő és a Duna parttól, rendezett társasház és egy igazán különleges kilátás várja új tulajdonosát.
???? További információért és megtekintésért keressen bizalommal!
Az ingatlan elhelyezkedése
Kapcsolati adatok
Érdeklődjön az ingatlanról, e-mailben!
Hasonló ingatlanok
Budapest I. kerület (Váralja), Vérmező út
Örökpanorámás, napfényes lakás – ritka lehetőség Budán!
Különleges ajánlat a Vérmező felett: eladó egy teljesk...
Budapest I. kerület (Víziváros), Széna tér
Tetőtéri ingatlan az I. kerületben.
Budapest I. kerület (Krisztinaváros), Gellérthegy utca
I. kerületi jó állapotú lakás a Krisztinaváros szívében.